UFZ-4浮标液位计
概述:UFZ系列浮标液位计适用于石化行业贮运系统的槽、罐、油库等容器的液位测量,被测介质可为酸性、碱性、高粘度及腐蚀性介质。 本液位计具有结构简单、视觉直观、安装维修方便等特点。工作原理:UFZ-2型浮标液位计是根据力平衡原理设计的,其工作原理见图一。设浮子的重量为W,浮子所受的浮力为F,指针重锤的重量为G,整个系统的磨擦力为f,当浮子浸浮在液体中某一位置时,这些力处于平衡状态,即:W-F-G±f
概述:
UFZ系列浮标液位计适用于石化行业贮运系统的槽、罐、油库等容器的液位测量,被测介质可为酸性、碱性、高粘度及腐蚀性介质。
本液位计具有结构简单、视觉直观、安装维修方便等特点。
工作原理:
UFZ-2型浮标液位计是根据力平衡原理设计的,其工作原理见图一。
设浮子的重量为W,浮子所受的浮力为F,指针重锤的重量为G,整个系统的磨擦力为f,当浮子浸浮在液体中某一位置时,这些力处于平衡状态,即:W-F-G±f=0。当液位发生变化时,引起浮子位置的变化,通过钢丝绳带动指针重锤移动,在标尺上显示出液位的相应位置,达到液位测量的目的。
UFZ-3型浮标液位计的工作原理见图二。
浮标、连杆、指示器为刚性连接,浮标浸浮在介质中,并随着液位的变化而升降,由指示器显示出某时刻液面的位置。
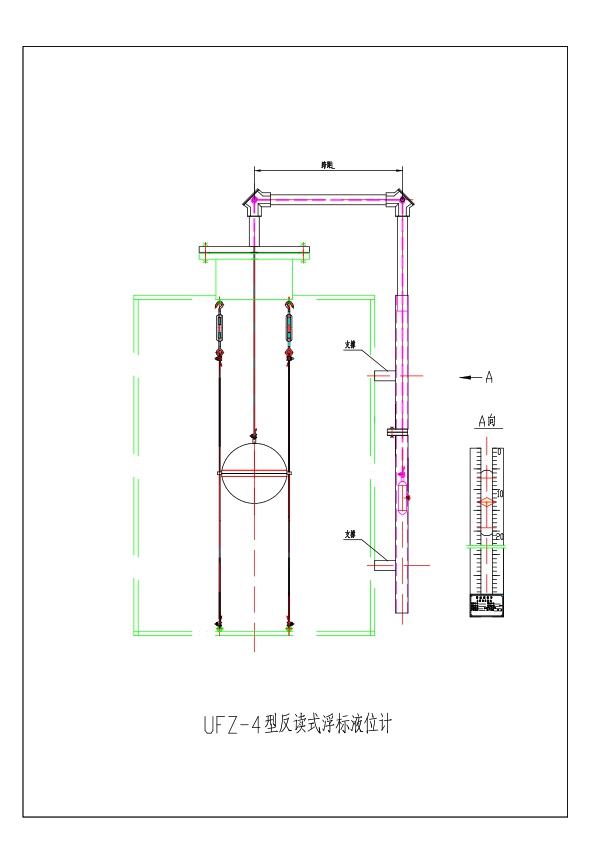
UFZ-4A型浮标液位计的工作原理见图三。其原理与UFZ-2型相似,但其量程范围更大、更为可靠。
UFZ-4B型浮标液位计的工作原理见图四。其原理与UFZ-4A型相似,但在显示方式方面更符合人的视觉习惯,即液位升高,指针上升;液位下降,指针下降。
内容 | 型号 | ||
UFZ-2 | UFZ-3 | UFZ-4A(B) | |
工作 | 常压 | 常压 | 常压 |
介质 | ≥0.6g/cm3 | ≥0.6g/cm3 | ≥0.6g/cm3 |
量程 | 500mm~10000mm时,任意指定测量范围;大于10000mm时,由用户指定,按特殊要求生产 | 500mm~3000mm | 500mm~10000mm时,任意指定测量范围;大于10000mm时,由用户指定,按特殊要求生产 |
现场指示精度 | ±20mm | - | ±20mm |
被测介质温度 | ―30℃~+200℃ | ―30℃~+200℃ | ―30℃~+200℃ |
连杆安装垂直度 | - | ≤5° | - |
导向钢丝安装垂直度 | ≤5° | - | ≤5° |
| 型号 | 说明 | |||
| UFZ-4 | 亚峰浮标液位计 | |||
| 类别 | Z | 正读式 | F | 反读式 |
| 压力等级(MPa) | 1.0 | PN1.0 | 1.6 | PN1.6 |
| 上法兰材质 | C | 碳钢 | P1 | 321 |
| P | 304 | PP | PP | |
| PL | 316L | |||
| 上法兰口径 | 50 | |||
| 65 | ||||
| 80 | ||||
| 量 程 | 量程 mm-密度 g/cm | |||
| 浮球材质 | P | 304 | ||
| PL | 316L | |||
| P1 | 321 | |||
| PF | 304喷涂 | |||
| PP | PP | |||
| 护罩材质 | C | 碳钢 | ||
| AL | 铝合金 | |||
| P | 304 | |||
| 配 件 | 省略 | 无 | ||
| Z | 磁翻板 | |||
| 密 封 | 省略 | 突面 | M | 全密封 |


| 介质名称: | 接液材质: | ||
| 液表位号: | 法兰规格: | ||
| 量程: | 法兰材质: | ||
| 压力: | 密度: | ||
| 连接方式: | 密封面: | ||
| 连接规格: |

